




Plot for sale
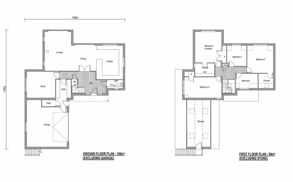
We are offering a residential development opportunity with planning in Street for a well designed detached four bedroom home with integral garage. The garage benefits a first floor storage space indicated on the plans, providing further 18sqm.
Plot for sale
Description
We are offering a residential development opportunity with planning in Street for a well designed detached four bedroom home with integral garage. The garage benefits a first floor storage space indicated on the plans, providing further 18sqm.
Contact Agent
Smart Picks — Professionals Relevant to This Land
Based on this property's key features, here are the specialists you may want to consult as part of your due diligence: land agents, rural solicitors, planning consultants and rics surveyors.

Land Agents
Essential for navigating the land market, finding buyers, and securing the best price.

Rural Solicitors
Significant investment (£300K+) requires legal expertise for conveyancing, title checks, and transaction security.

Planning Consultants
Planning-sensitive site needs expert guidance for applications and development strategy.

RICS Surveyors
Prime or productive land requires professional valuation to ensure fair market value.
Location
Lot 2 at Summerleaze